Vista Refined
Mercer Island, WA
2026 (Under Construction)
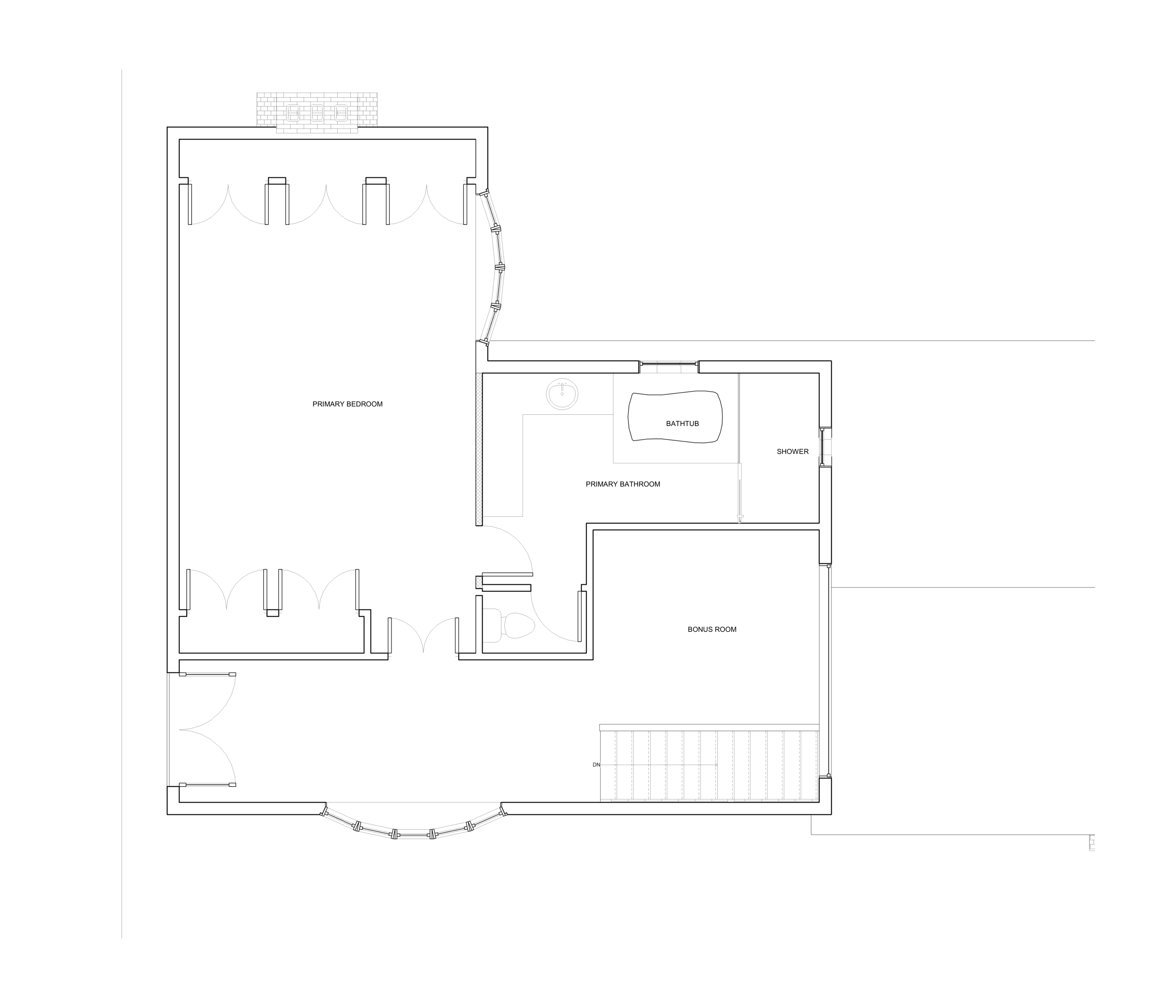
This full-house remodel is located on the waterfront of Mercer Island, where the property enjoys extraordinary views. Despite its remarkable setting, the existing layout did not fully take advantage of the surrounding landscape. From a professional architectural perspective, the design expanded beyond the owner’s initial request and proposed a series of layout improvements that did not require structural alterations.
The renovation enlarges the kitchen, introduces additional storage, and reorganizes everyday circulation, while adding a new bedroom oriented toward the view. Rather than relying on cosmetic upgrades alone, these spatial adjustments unlock the home’s true potential and significantly enhance its long-term value. By working within the existing structural framework, the design carefully balances investment and impact—minimizing construction costs while maximizing architectural and financial return.
Every homeowner has a unique set of needs. Thoughtful design lies in balancing daily living, aesthetic clarity, and investment considerations to create spaces that are both meaningful and enduring.






Vista Refined
Mercer Island, WA
2026 (Under Construction)
This full-house remodel is located on the waterfront of Mercer Island, where the property enjoys extraordinary views. Despite its remarkable setting, the existing layout did not fully take advantage of the surrounding landscape. From a professional architectural perspective, the design expanded beyond the owner’s initial request and proposed a series of layout improvements that did not require structural alterations.
The renovation enlarges the kitchen, introduces additional storage, and reorganizes everyday circulation, while adding a new bedroom oriented toward the view. Rather than relying on cosmetic upgrades alone, these spatial adjustments unlock the home’s true potential and significantly enhance its long-term value. By working within the existing structural framework, the design carefully balances investment and impact—minimizing construction costs while maximizing architectural and financial return.
Every homeowner has a unique set of needs. Thoughtful design lies in balancing daily living, aesthetic clarity, and investment considerations to create spaces that are both meaningful and enduring.






